LOADING

145 Lorie Street The Nation, Ontario K0A 2M0

3 Bedroom 3 Bathroom 1100 - 1500 sqft
Central Air Conditioning Forced Air

$499,500

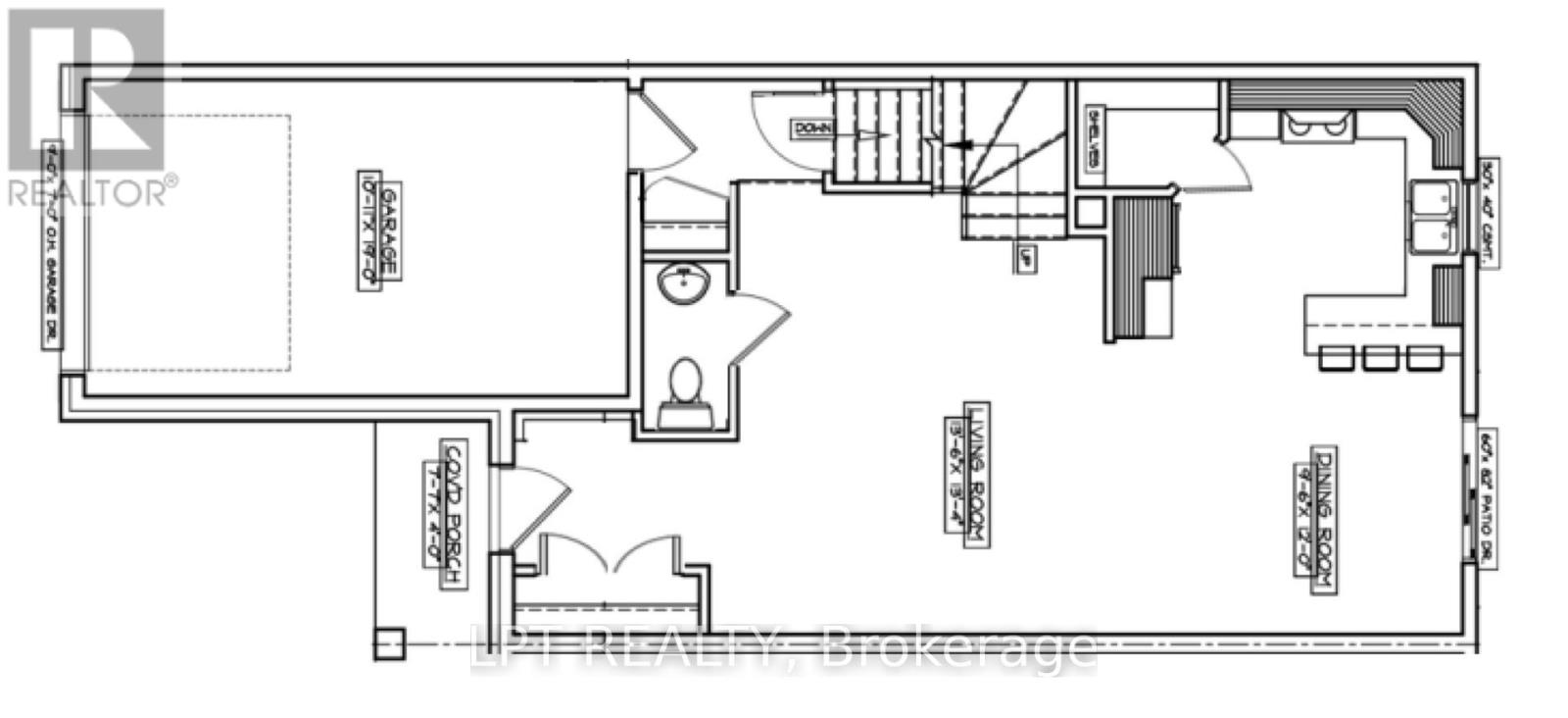
OPEN HOUSE Sunday March 8th 2:00pm - 4:00pm AT 14 Christian Street, Limoges. Modern Town Home offers not only smart design and comfortable living but also the rare advantage of extra outdoor space for your family, entertaining, or future landscaping dreams. This beautifully crafted 2-storey home features 1,313 square feet of functional, stylish living space with 3 bedrooms, 2.5 bathrooms, and a 1-car garage. The bright and airy open-concept main floor provides a seamless flow between kitchen, dining, and living areas perfect for modern living and entertaining. Upstairs, all three bedrooms are thoughtfully tucked away for privacy. The spacious primary suite includes its own private ensuite and a generous walk-in closet, creating a comfortable retreat at the end of the day. Constructed by Leclair Homes, a trusted family-owned builder known for exceeding Canadian Builders Standards. Specializing in custom homes, two-storeys, bungalows, semi-detached, and now offering fully legal secondary dwellings with rental potential in mind, Leclair Homes brings detail-driven craftsmanship and long-term value to every project. (id:37072)

Property Details

MLS® Number X12853728
Property Type Single Family
Community Name 616 - Limoges
ParkingSpaceTotal 3

Building

BathroomTotal 3
BedroomsAboveGround 3
BedroomsTotal 3
Age New Building
Appliances Water Heater
BasementDevelopment Unfinished
BasementType Full (unfinished)
ConstructionStyleAttachment Attached
CoolingType Central Air Conditioning
ExteriorFinish Stone, Vinyl Siding
FoundationType Concrete
HalfBathTotal 1
HeatingFuel Natural Gas
HeatingType Forced Air
StoriesTotal 2
SizeInterior 1100 - 1500 Sqft
Type Row / Townhouse
UtilityWater Municipal Water

Parking

Attached Garage
Garage

Land

Acreage No
Sewer Sanitary Sewer
SizeDepth 33.5 M
SizeFrontage 7.43 M
SizeIrregular 7.4 X 33.5 M
SizeTotalText 7.4 X 33.5 M

Rooms

Level Type Dimensions

https://www.realtor.ca/real-estate/29437290/145-lorie-street-the-nation-616-limoges

Interested?

Contact us for more information


Generating Captcha

Ronald Jr. Mccomber-Rozon
Salesperson


Lpt Realty
343 Preston St. Unit: 11th Floor
Ottawa, Ontario K1S 5N4

Meghan Courtemanche
Salesperson


Lpt Realty
343 Preston St. Unit: 11th Floor
Ottawa, Ontario K1S 5N4

Your Favourites

 

No Favourites Found