LOADING

172 Lorie Street The Nation, Ontario K0A 2M0

3 Bedroom 2 Bathroom 1100 - 1500 sqft
Forced Air

$489,800

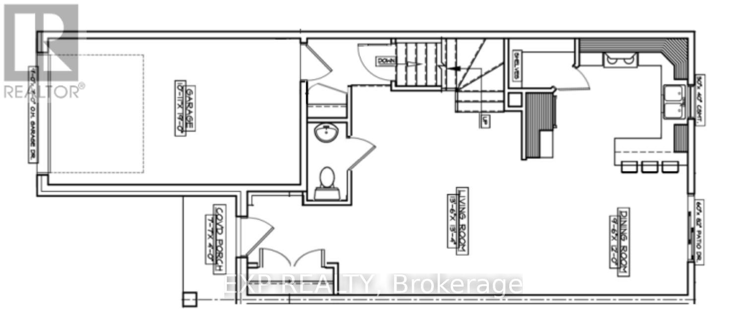
OPEN HOUSE JULY 20th 2-4PM AT 60 Mayer St Limoges. Rarely offered and thoughtfully designed, this Modern Town Home sits on an impressive 147 ft deep premium lot, giving you the outdoor space you didn't think was possible in a townhome setting. Whether it's for gardening, entertaining, or simply enjoying more privacy this property delivers. Inside, you'll find 1,313 square feet of bright and functional living space across two levels. With 3 bedrooms, 1.5 bathrooms, and a 1-car garage, this home is ideal for first-time buyers, young families, or investors looking for a low-maintenance lifestyle without compromising on comfort or style. The open-concept main floor flows effortlessly between the kitchen, dining, and living areas, making everyday life and entertaining feel seamless. Upstairs, all three bedrooms are thoughtfully placed for privacy, including a spacious primary bedroom with a walk-in closet and convenient access to the full bath. Constructed by Leclair Homes, a trusted family-owned builder known for exceeding Canadian Builders Standards. Specializing in custom homes, two-storeys, bungalows, semi-detached homes, and now fully legal secondary dwellings with rental potential in mind, Leclair Homes delivers detail-driven craftsmanship and long-term value in every build. (id:37072)

Open House

This property has open houses!

July
20
Sunday
Starts at:

2:00 pm

Ends at:

4:00 pm

Property Details

MLS® Number X12272235
Property Type Single Family
Community Name 616 - Limoges
ParkingSpaceTotal 3

Building

BathroomTotal 2
BedroomsAboveGround 3
BedroomsTotal 3
Age New Building
Appliances Water Heater
BasementDevelopment Unfinished
BasementType Full (unfinished)
ConstructionStyleAttachment Attached
ExteriorFinish Stone, Vinyl Siding
FoundationType Concrete
HalfBathTotal 1
HeatingFuel Natural Gas
HeatingType Forced Air
StoriesTotal 2
SizeInterior 1100 - 1500 Sqft
Type Row / Townhouse
UtilityWater Municipal Water

Parking

Attached Garage
Garage

Land

Acreage No
Sewer Sanitary Sewer
SizeDepth 147 Ft
SizeFrontage 22 Ft
SizeIrregular 22 X 147 Ft
SizeTotalText 22 X 147 Ft
ZoningDescription Residential

Rooms

Level Type Dimensions

https://www.realtor.ca/real-estate/28578909/172-lorie-street-the-nation-616-limoges

Interested?

Contact us for more information


Generating Captcha

Ronald Jr. Mccomber-Rozon
Salesperson


Exp Realty
12 High Street
Vankleek Hill, Ontario K0B 1R0

Meghan Courtemanche
Salesperson


Exp Realty
12 High Street
Vankleek Hill, Ontario K0B 1R0

Your Favourites

 

No Favourites Found