LOADING

58 Hughes Circle Casselman, Ontario K0A 1M0

2 Bedroom 2 Bathroom 1100 - 1500 sqft
Bungalow Fireplace Air Exchanger Forced Air

$544,900

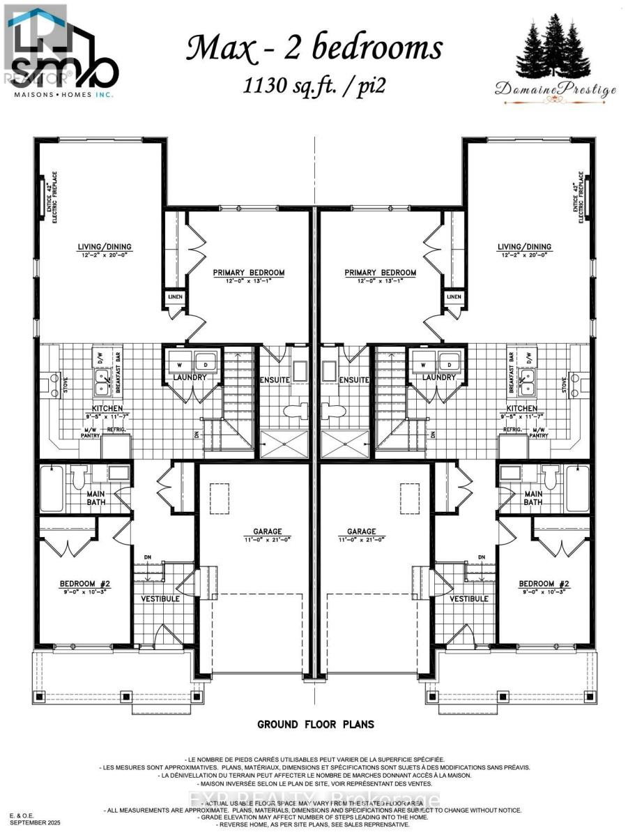
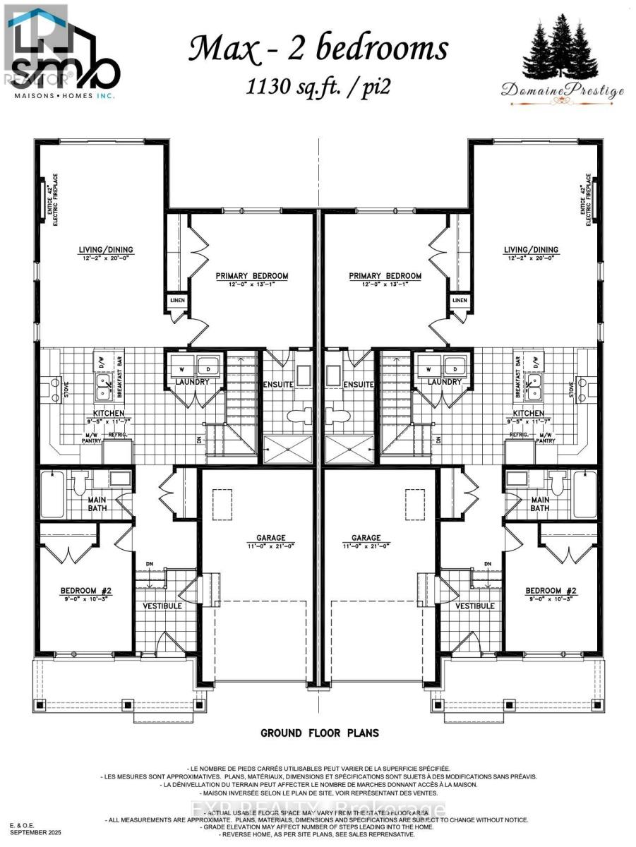
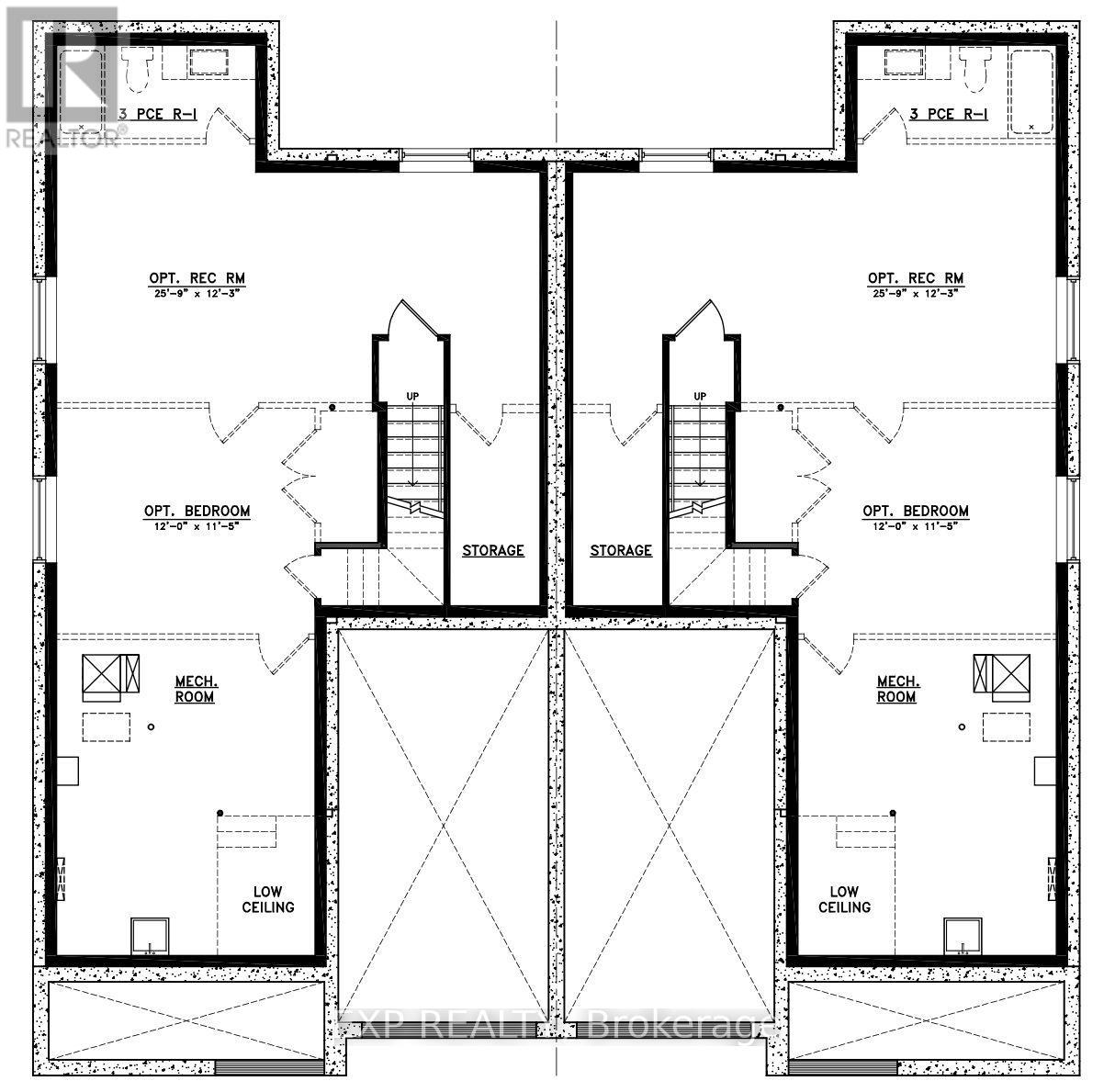
The MAX model - smart design, lasting value. Step into a home that proves great things come in smaller packages. The MAX is a semi-detached bungalow that combines charm, comfort and style with unbeatable efficiency. From the moment your enter, the flowing living and dining area sets the tone for cozy gatherings and easy entertaining around a sleek electric fireplace. A modern kitchen with full-height cabinetry, a ceramic backsplash, and a chimney hood fan makes every meal a pleasure. Triple patio doors open to your backyard, where peaceful wooded setting becomes an extension of your living space. Practicality meets peace of mind with a concrete party wall for superior soundproofing, plus the flexibility to finish the basement to suit your lifestyle - wether it's a family room, home office or guest suite. The MAX is where affordability meets sophistication, perfect for downsizers, first-time buyers, or anyone looking to enjoy the comfort of a new-build home without compromise. Municipal taxes have not yet been assessed. (id:37072)

Property Details

MLS® Number X12426071
Property Type Single Family
Community Name 604 - Casselman
ParkingSpaceTotal 3

Building

BathroomTotal 2
BedroomsAboveGround 2
BedroomsTotal 2
Amenities Fireplace(s)
ArchitecturalStyle Bungalow
BasementDevelopment Unfinished
BasementType Full (unfinished)
ConstructionStyleAttachment Semi-detached
CoolingType Air Exchanger
ExteriorFinish Stone, Vinyl Siding
FireplacePresent Yes
FireplaceTotal 1
FoundationType Poured Concrete
HeatingFuel Natural Gas
HeatingType Forced Air
StoriesTotal 1
SizeInterior 1100 - 1500 Sqft
Type House
UtilityWater Municipal Water

Parking

Attached Garage
Garage

Land

Acreage No
Sewer Sanitary Sewer
SizeDepth 101 Ft ,1 In
SizeFrontage 33 Ft ,1 In
SizeIrregular 33.1 X 101.1 Ft
SizeTotalText 33.1 X 101.1 Ft
ZoningDescription Residential

Rooms

Level Type Dimensions
Main Level Living Room 3.71 m x 6.09 m
Main Level Kitchen 2.89 m x 3.56 m
Main Level Primary Bedroom 3.65 m x 3.99 m
Main Level Bedroom 2 2.74 m x 3.13 m

Utilities

Cable Available
Electricity Installed
Sewer Installed

https://www.realtor.ca/real-estate/28911460/58-hughes-circle-casselman-604-casselman

Interested?

Contact us for more information


Generating Captcha

Michel Leger
Salesperson


Exp Realty
343 Preston Street, 11th Floor
Ottawa, Ontario K1S 1N4

Your Favourites

 

No Favourites Found