LOADING

7631 Stone School Road Ottawa, Ontario K0A 2P0

1 Bathroom 44982 sqft
Unknown Forced Air Acreage

$1,850,000

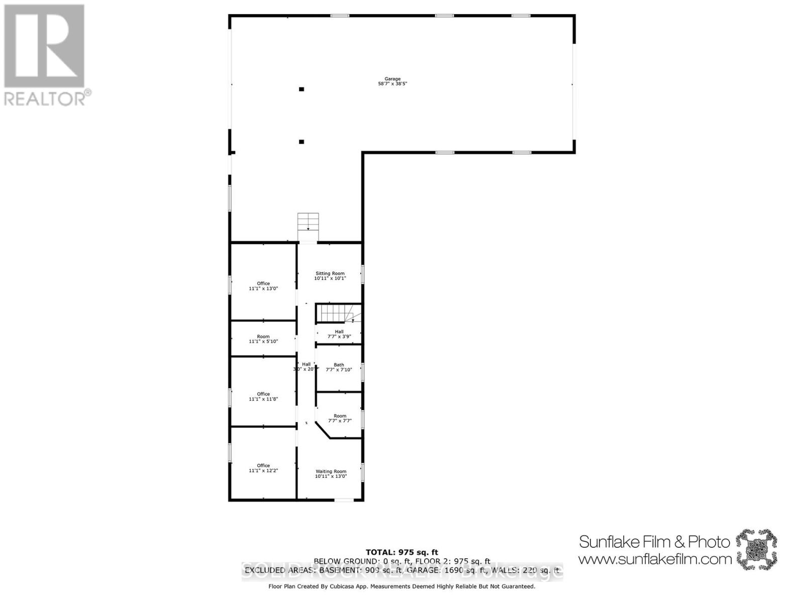
This prime RH3 Heavy Industrial-zoned property is strategically located at the busy intersection of Bank Street and Stone School Road, offering exceptional visibility and two-way exposure, an ideal setting for a wide variety of commercial and industrial uses. Situated on over an acre of land, the site provides ample outdoor parking and storage with convenient dual laneway access, perfectly suited for businesses requiring both office and industrial facilities. The office building (approx. 1,000 sq. ft.) is thoughtfully designed with a welcoming foyer, four private offices, a waiting area, a kitchenette, a washroom, and a storage space. Complementing this is a versatile warehouse/shop (approx. 1,800 sq. ft.) featuring two 10-ft. roll-up doors for efficient drive-through access, 11-ft. ceiling height, 24-ft. width, and 60-ft. depth. Offering a rare combination of high traffic exposure, functionality, and flexible zoning, this property presents an excellent opportunity for a wide range of business ventures in a sought-after location. (id:37072)

Property Details

MLS® Number X12419784
Property Type Industrial
Neigbourhood Osgoode
Community Name 1605 - Osgoode Twp North of Reg Rd 6
AmenitiesNearBy Highway
Features Irregular Lot Size
ParkingSpaceTotal 125

Building

BathroomTotal 1
Age 16 To 30 Years
CoolingType Unknown
HeatingFuel Natural Gas
HeatingType Forced Air
SizeInterior 44982 Sqft
UtilityWater Drilled Well

Land

Acreage Yes
LandAmenities Highway
SizeDepth 257 Ft
SizeFrontage 149 Ft
SizeIrregular 1.588
SizeTotal 1.588 Ac
SizeTotalText 1.588 Ac
ZoningDescription Rh3(21)

https://www.realtor.ca/real-estate/28897442/7631-stone-school-road-ottawa-1605-osgoode-twp-north-of-reg-rd-6

Interested?

Contact us for more information


Generating Captcha

Jeffrey Balys
Salesperson


Solid Rock Realty
5 Corvus Court
Ottawa, Ontario K2E 7Z4

Anthony Balys
Salesperson


Solid Rock Realty
5 Corvus Court
Ottawa, Ontario K2E 7Z4

Your Favourites

 

No Favourites Found