LOADING

932 Katia Street The Nation, Ontario K0A 2M0

2 Bedroom 2 Bathroom 1100 - 1500 sqft
Bungalow Forced Air

$645,800

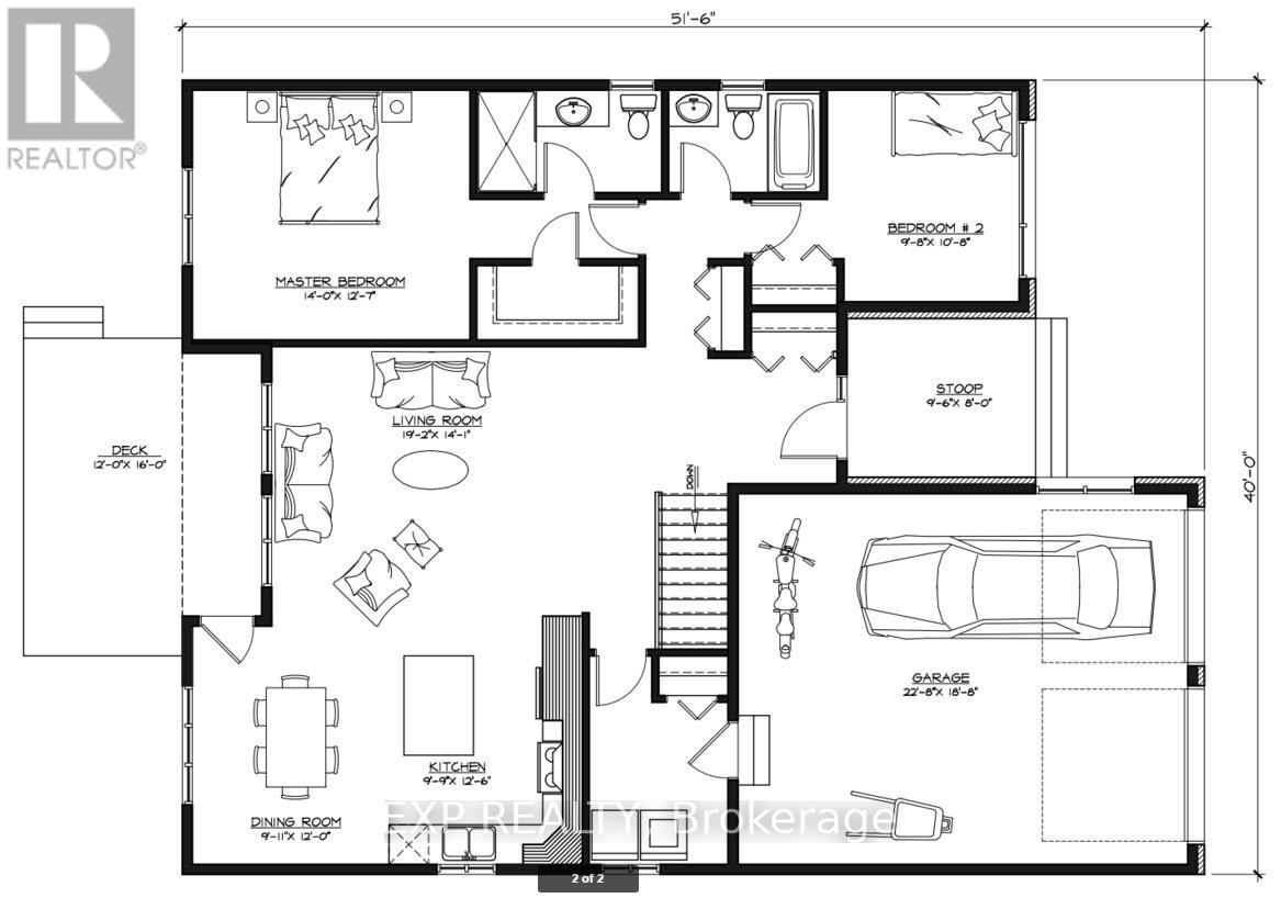
OPEN HOUSE JULY 20th 2-4PM AT 60 Mayer St Limoges. Introducing the Modern Audrey a sleek and stylish bungalow offering 1,315 square feet of thoughtfully designed living space. With 2 bedrooms and 2 full bathrooms, this home is ideal for those seeking one-level living without compromising on comfort or elegance. The open-concept layout creates a seamless flow between living, dining, and kitchen areas, perfect for everyday living and entertaining. The primary suite is a true retreat, complete with its own ensuite bathroom for added privacy and relaxation. A spacious 2-car garage adds functionality and convenience, making this model perfect for downsizers, first-time buyers, or anyone looking for low-maintenance living with a modern edge. Constructed by Leclair Homes, a trusted family-owned builder known for exceeding Canadian Builders Standards. Specializing in custom homes, two-storeys, bungalows, semi-detached, and now offering fully legal secondary dwellings with rental potential in mind, Leclair Homes brings detail-driven craftsmanship and long-term value to every project. (id:37072)

Open House

This property has open houses!

July
20
Sunday
Starts at:

2:00 pm

Ends at:

4:00 pm

Property Details

MLS® Number X12272244
Property Type Single Family
Community Name 616 - Limoges
ParkingSpaceTotal 6

Building

BathroomTotal 2
BedroomsAboveGround 2
BedroomsTotal 2
Age New Building
Appliances Water Heater
ArchitecturalStyle Bungalow
BasementDevelopment Unfinished
BasementType Full (unfinished)
ConstructionStyleAttachment Detached
ExteriorFinish Stone, Vinyl Siding
FoundationType Concrete
HeatingFuel Natural Gas
HeatingType Forced Air
StoriesTotal 1
SizeInterior 1100 - 1500 Sqft
Type House
UtilityWater Municipal Water

Parking

Attached Garage
Garage

Land

Acreage No
Sewer Sanitary Sewer
SizeDepth 109 Ft
SizeFrontage 49 Ft
SizeIrregular 49 X 109 Ft
SizeTotalText 49 X 109 Ft
ZoningDescription Residential

Rooms

Level Type Dimensions
Main Level Kitchen 3 m x 3.8 m
Main Level Living Room 5.8 m x 4.3 m
Main Level Dining Room 3 m x 3.7 m
Main Level Primary Bedroom 4.3 m x 3.8 m
Main Level Bedroom 2 3 m x 3.3 m

Utilities

Electricity Installed
Sewer Installed

https://www.realtor.ca/real-estate/28578917/932-katia-street-the-nation-616-limoges

Interested?

Contact us for more information


Generating Captcha

Ronald Jr. Mccomber-Rozon
Salesperson


Exp Realty
12 High Street
Vankleek Hill, Ontario K0B 1R0

Meghan Courtemanche
Salesperson


Exp Realty
12 High Street
Vankleek Hill, Ontario K0B 1R0

Your Favourites

 

No Favourites Found