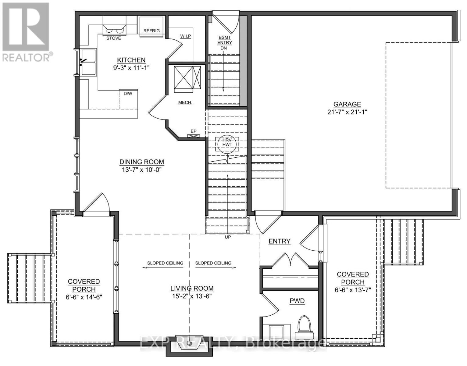
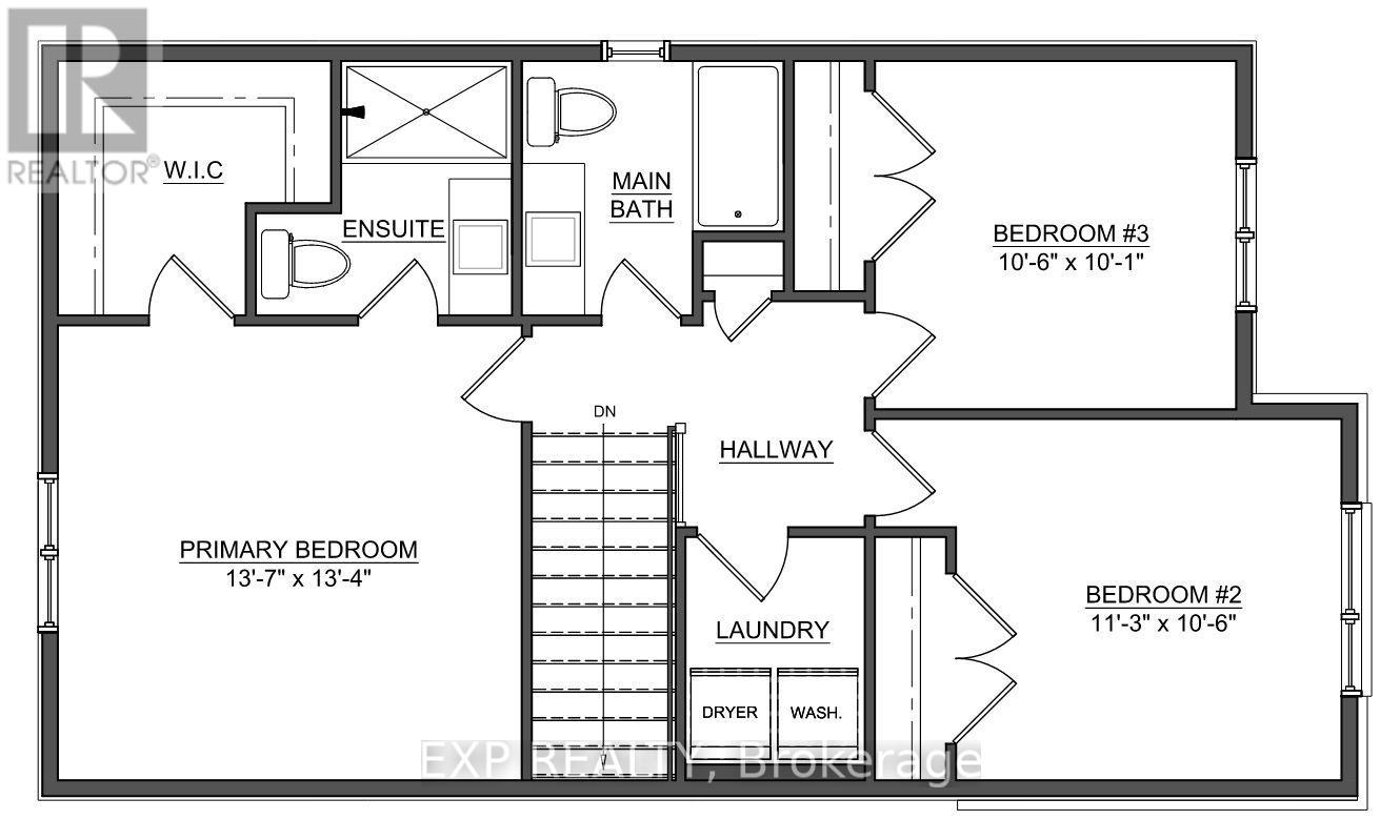
OPEN HOUSE December 18th at 4:00pm - 6:00pm 63 Chateauguay Street, Embrun. Welcome to the Emma a beautifully designed 2-storey home offering 1,555 square feet of smart, functional living space. This 3-bedroom, 2.5-bath layout is ideal for families or anyone who values efficient, stylish living. The open-concept main floor is filled with natural light, and the garage is conveniently located near the kitchen perfect for easy grocery hauls straight to the pantry. Upstairs, the spacious primary suite features a walk-in closet and private ensuite, creating a relaxing retreat at the end of the day. Every inch of the Emma is thoughtfully laid out to blend comfort, convenience, and modern design. What truly sets this model apart is its fully legal, separate metered basement unit, complete with a separate 1-bedroom layout and 4-piece bathroom. Whether you're looking to generate rental income, accommodate extended family, or create a private guest space, this built-in secondary dwelling offers flexibility and long-term value. Constructed by Leclair Homes, a trusted family-owned builder known for exceeding Canadian Builders Standards. Specializing in custom homes, two-storeys, bungalows, semi-detached homes, and now offering fully legal secondary dwellings with rental potential in mind, Leclair Homes brings detail-driven craftsmanship and long-term value to every project. (id:37072)
| MLS® Number | X12272241 |
| Property Type | Multi-family |
| Community Name | 616 - Limoges |
| Features | In-law Suite |
| ParkingSpaceTotal | 6 |
| BathroomTotal | 4 |
| BedroomsAboveGround | 3 |
| BedroomsBelowGround | 1 |
| BedroomsTotal | 4 |
| Age | New Building |
| Amenities | Separate Electricity Meters |
| Appliances | Water Heater |
| BasementFeatures | Apartment In Basement |
| BasementType | Full |
| CoolingType | None |
| ExteriorFinish | Stone, Vinyl Siding |
| FoundationType | Concrete |
| HalfBathTotal | 1 |
| HeatingFuel | Natural Gas |
| HeatingType | Forced Air |
| StoriesTotal | 2 |
| SizeInterior | 1500 - 2000 Sqft |
| Type | Duplex |
| UtilityWater | Municipal Water |
| Attached Garage | |
| Garage |
| Acreage | No |
| Sewer | Sanitary Sewer |
| SizeDepth | 109 Ft |
| SizeFrontage | 45 Ft |
| SizeIrregular | 45 X 109 Ft |
| SizeTotalText | 45 X 109 Ft |
| ZoningDescription | Residential |
| Level | Type | Length | Width | Dimensions |
|---|---|---|---|---|
| Main Level | Kitchen | 2.9 m | 3.76 m | 2.9 m x 3.76 m |
| Main Level | Living Room | 4.11 m | 5 m | 4.11 m x 5 m |
| Main Level | Dining Room | 3.51 m | 3.76 m | 3.51 m x 3.76 m |
| Main Level | Primary Bedroom | 3.55 m | 4.27 m | 3.55 m x 4.27 m |
| Main Level | Bedroom 2 | 3.1 m | 4.04 m | 3.1 m x 4.04 m |
| Main Level | Bedroom 3 | 3.2 m | 3.53 m | 3.2 m x 3.53 m |
| Electricity | Installed |
| Sewer | Installed |
https://www.realtor.ca/real-estate/28578914/940-katia-street-the-nation-616-limoges
Contact us for more information
Ronald Jr. Mccomber-Rozon
Salesperson
Meghan Courtemanche
Salesperson